Støle 160
Boligens første etasje byr på tre soverom og et stort kombinert tv-stue/arbeidsrom. Her finner man også hovedbadet og et vaskerom/teknisk rom som har direkte adgang fra garasjen.
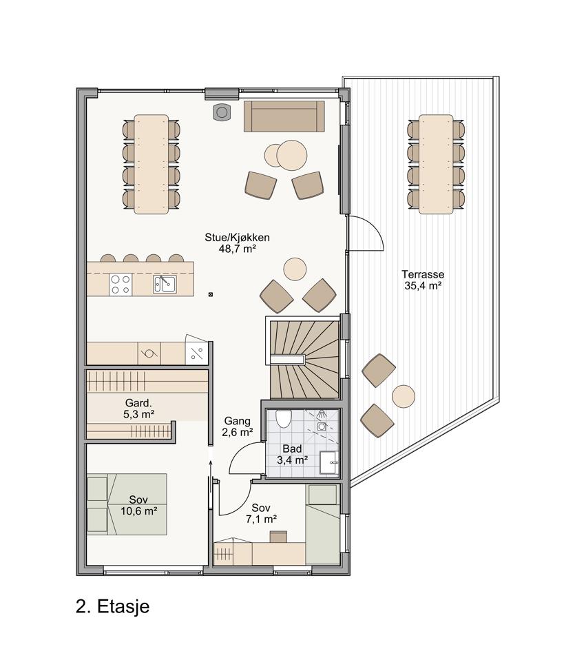
Opp trappen kommer man inn i et stort oppholdsrom med åpen kjøkken- og stueløsning. Her er det god plass til flere sittegrupper og store vinduer gir godt med lys. Fra stuen er det direkte utgang til terrassen.
Andre etasje rommer i tillegg et stort master soverom med walk-in garderobe, et mindre soverom og WC-rom.
Støle 130 kan bygges på flere tomter på Støle Terrasse.
Nøkkelinformasjon
Totalt bruksareal (BRA): 187m². (1.etg. 106m² + 2.etg. 81m²)
Internt bruksareal (BRA-i): 162m²
Eksternt bruksareal (BRA-e): 25m²
Terrasse- og balkongareal (TBA): 35m²
- 5 soverom
- Åpen stue- og kjøkkenløsning
- TV-stue/arbeidsrom
- 2 bad
- Vaskerom/teknisk rom
- Enkeltgarasje
- Terrasse
- Store vindusflater som gir mye lys og utsikt
Avgifter, gebyr og omkostninger vil utgjøre fra 98.396 til 125.521 avhengig av tomtepris og enhetstype. Dette inkluderer dokumentavgift 2,5% av kjøpsverdi byggeklar tomt, tinglysningsgebyr skjøte og pantedokument, attestgebyr, kommunale tilkoblingsavgifter for vann og avløp til Grimstad kommune, byggesaksgebyr Grimstad kommune, fradelings og oppmålingsgebyr Grimstad kommune.
Pris per mai 2025. Illustrasjoner kan avvike fra endelige leveranse.
Ta kontakt med boligkonsulent for utvidet beskrivelse av boligen og annen informasjon om Støle Terrasse.
Fasader

Plantegninger



Kontakt våre boligkonsulenter:

